Мы используем куки-файлы. Соглашение об использовании
  • Если понравилась квартира,
    позвоните застройщику
  • ВТБ
    ПСБ
    Совкомбанк
    Альфа-Банк
    Уралсиб
    Банк ДОМ.РФ
    Т-Банк
    МКБ
    Абсолют Банк
    Реальные ипотечные ставки от 9 банков - 5,75% на новостройки, 16,9% на вторичку
    Перейти в сервис
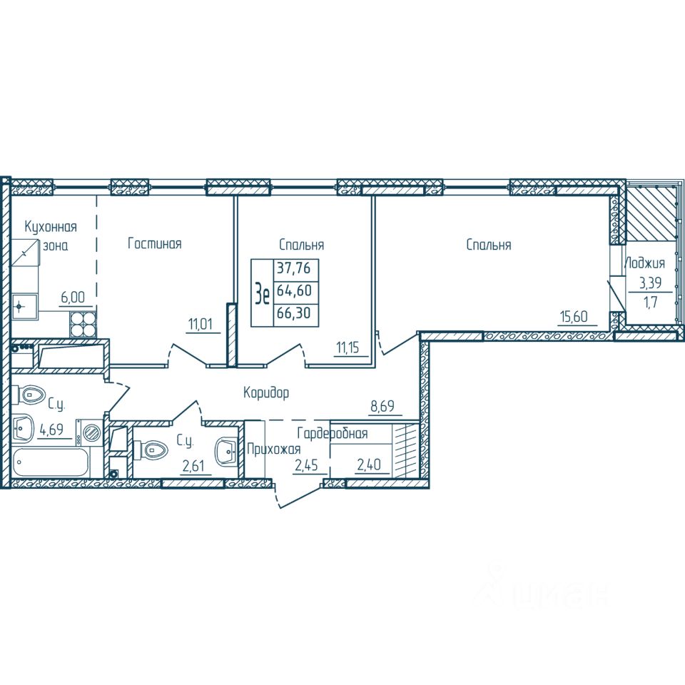
Общая площадь66,3 м²
Этаж8 из 18
Год сдачи2028
ДомНе сдан
ОтделкаЧерновая
Продаётся 2-комнатная квартира в строящемся доме (Дом 1), срок сдачи: I-кв. 2028, общей площадью 66.3 кв.м., на 8 этаже. Новый жилой комплекс "Мон" от группы компаний "Бина" расположен по адресу: г. Саранск, по ул. пр-кт Ленина.

О квартире

Тип жилья

Новостройка

Общая площадь

66,3 м²

Высота потолков

2,7 м

Отделка

Черновая

О доме

Количество лифтов

1 пассажирский, 3 грузовых

Тип дома

Монолитный

Пандус

Есть

Понравилась квартира — узнайте о ней больше

Застройщик ответит на все вопросы

Варианты отделки в ЖК

  • Черновая
Похоже на то, что вы ищете?

Акции в ЖК «Мон»

Узнайте про персональные условия и дополнительные скидки при покупке квартиры у застройщика
Ипотечный калькулятор
  • Базовая
  • Семейная
  • ИТ-ипотека
  • 20%
  • 30%
  • 40%
  • 50%
лет
  • 10 лет
  • 20 лет
  • 30 лет
Загружаем предложения от застройщика и банков

Расположение

Корпус проверен наш.дом.рф
Обновлено 9 апреля 2026
  • Нет в реестре проблемных объектов
  • Застройщик не банкрот
  • Есть эскроу счёт
  • Актуальные фото стройки

Ещё квартиры в жилом комплексе

33 квартиры в продаже · Сдача в 1 кв. 2028
ЗастройщикГК БИНА
Год основания: 2023
Строится: 4 дома в 4 ЖК
9 016 800 ₽
Цена за метр
136 000 ₽/м²
Условия сделки
долевое участие (214-ФЗ)