125 000 ₽/м²
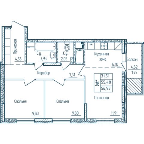
Продаётся 2-комнатная квартира в сданном доме (Республиканская, 47 (Дом 1)), срок сдачи: III-кв. 2025, общей площадью 67.3 кв.м., на 1 этаже. Квартиры от застройщика! Фиксированные цены без комиссии! Дом комфорт-класса в центре Саранска. Действует семейная ипотека 6%! Жилой дом комфорт-класса "Янтарный" расположился в центральной части Саранска, в двух минутах от парка имени А.С. Пушкина. Комфортные планировки, панорамное остекление балконов, детская площадка для разных возрастных групп. Дом для тихой и размеренной семейной жизни. КВАРТИРА Эргономичные планировки от 66,99 до 100,48 м2 Высота потолков: 2,73 м Панорамное остекление балконов Корзины для кондиционеров предусмотрены для каждой квартиры ДОМ 8 этажей 5 квартир на площадке Наружные стены из кирпича с облицовкой утеплителем и последующей окраской по декоративной тонкослойной штукатурке Колясочная и велопарковка Кладовые от 2,92 м2 до 5,64 м2 с противопожарными дверями (приобретаются отдельно) Собственная газовая котельная ДВОР Детские площадки для разных возрастных групп Спортивная площадка Выделенная зона отдыха со скамейками Ландшафтное озеленение ИНФРАСТРУКТУРА В шаговой доступности находятся детские сады, школа, всевозможные магазины, рынок, аптеки, развивающие центры для детей, спортивные учреждения, остановки общественного транспорта. Вы всегда сможете совершить приятную прогулку всей семьей до парка, набережной и даже до центра города. Легендарный парк в шаговой доступности СПОСОБЫ ПОКУПКИ: ипотечные программы от ведущих банков (семейная, военная, IT-ипотека) материнский капитал жилищные сертификаты Звоните! Специалисты отдела продаж ответят на все вопросы. Проводим ипотечные консультации.





















































