



127 850 ₽/м²
Уважаемые покупатели! Продается отличная 2-комнатная квартира на 10-ом этаже 10-ти этажного кирпичного дома на улице Гагарина 2022 г. постройки. Просторная, с двумя изолированными комнатами, окна которых выходят на разные стороны дома, тип квартиры распашонка в 60.1 кв. м. (без учета квадратуры балкона и лоджии). Квартира включает в себя большую кухню-гостиную в 14.4 кв. м. с выходом на застекленную лоджию. Выполнен качественный ремонт. Санузел раздельный. Из одной комнаты есть выход на балкон с панорамными окнами. В квартире остаются: кухонный гарнитур, встраиваемая техника, остальное все по договоренности. Имеется практически все для проживания, ЗАХОДИ И ЖИВИ. Во дворе расположены спортивная и детская площадка. Остановка общественного транспорта находится практически около дома, с которой можно уехать в разные районы города. Все необходимое в шаговой доступности: новый детский сад, магазины Магнит, КБ, кaнцпаpк, аптeка апpeль, здopoвье, Яндeкc Маркет, озон, Казань экcпpeсс. Mинута xoдьбы до водoматoв. Порядочные соседи, тихий двор. Возле дома две парковки. Остались вопросы, ЗВОНИТЕ! Код пользователя: 175041 Номер в базе: 7688129



127 049 ₽/м²
Квартира в юго-западной части города, в хорошем месте, рядом есть вся необходимая инфраструктура. Закрытая парковка, игровая площадка во дворе. Удобная планировка, не угловая, окна выходят на разные стороны. Квартира теплая, индивидуальное отопление, коммунальные платежи маленькие!!! Юридически чистая, обременений нет! Продажа от собственника. По всем вопросам звоните. Цена обсуждается.


127 000 ₽/м²
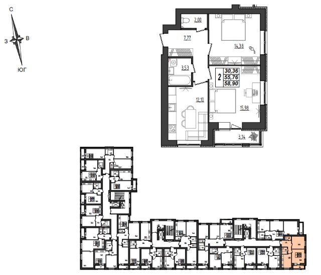
Продаётся 2-комнатная квартира в строящемся доме (Дом 1), срок сдачи: III-кв. 2026, общей площадью 65.2 кв.м., на 10 этаже. Новый жилой комплекс "Лето" от Специализированного застройщика "Альфастрой" расположен по адресу: г. Саранск, по ул. Республиканская.



123 000 ₽/м²
Продаётся 2-комнатная квартира в строящемся доме (Дом 1), срок сдачи: III-кв. 2026, общей площадью 76.6 кв.м., на 10 этаже. Новый жилой комплекс "Лето" от Специализированного застройщика "Альфастрой" расположен по адресу: г. Саранск, по ул. Республиканская.



109 375 ₽/м²
Продается квартира в сданном доме жилого комплекса "Вера". Общая площадь 44.8 кв.м включает просторную кухню-гостиную 19 кв.м, что создает основу для современного и комфортного жилого пространства. Объект расположен на 4 этаже десятиэтажного здания, что обеспечивает хорошую инсоляцию и отсутствие необходимости пользоваться лифтом. Ключевое преимущество — цена ниже рыночной на первичном рынке, так как квартира приобретается у дольщика. Вы получаете готовое к проживанию жилье с гарантией надежности: дом сдан, введен в эксплуатацию, работы по благоустройству территории в процессе. Район демонстрирует активное развитие инфраструктуры: в шаговой доступности формируются объекты торговли, услуг и общественного питания. Транспортная доступность позволяет быстро добраться до центральных магистралей города. Это рациональное вложение в недвижимость с четким правовым статусом и потенциалом роста стоимости за счет развития локации. Состояние квартиры позволяет заехать сразу или реализовать дизайн-проект под свои задачи. Для детального просмотра и обсуждения условий сделки доступен прямой контакт с собственником. Код пользователя: 147103 Номер в базе: 12256995



135 018 ₽/м²
Продаётся уютная двухкомнатная квартира площадью 62.14 квадратных метра на одиннадцатом этаже нового 14 этажного кирпичного дома, 2026 года постройки, расположенного в микрорайоне Юбилейный города Саранска. Не угловая. Хороший вид из окна. Такая цена только до сдачи дома (сдача апрель 2026) Этот дом станет отличным выбором для тех, кто ценит комфорт и удобство современной жилой среды. Рядом с домом находятся учебные заведения, включая Центр образования 15 Высота, . Также в шаговой доступности расположены магазины Магнит и Пятерочка торговый центр Сити -Парк, Мегастрой , где можно приобрести все необходимое для повседневной жизни. До центра города на машине 5 минут. Для маленьких жителей района работают Центры развития ребенка-детский сад 3 и 9. ЖК построен по современной концепции двор без машин Продаю сам. Единственный собственник. Реальному покупателю возможен небольшой торг.



94 801 ₽/м²
Арт. 133597471 Однокомнатная квартира с современным ремонтом, кухней и техникой по суперцене! Квартира площадью 32,7 м² будет расположен в совершенно новом ЖК "Лугометрия" в 1-ом строении. (ул.Побочинская, вблизи ул. Яшиной, Дальнее Арбеково) Передача ключей по договору долевого участия в июне 2028 года. Продуманная и функциональная планировка: спальня 16 м², удобная кухня 8,38 м², санузел совмещенный 4,5 м². Высокие потолки 2,7м. и увеличенное остекление окон - много воздуха и света! Квартира расположена на 9 этаже 17 этажного дома с отличным видом. Качественная, современная отделка "под ключ"! Отличное решение, чтобы не тратить деньги, время и нервы на ремонт! Можно сразу заехать и жить в тишине и комфорте и не слушать ремонты соседей годами)) - на стенах флизелиновые обои спокойного нейтрального оттенка; - напольное покрытие: в санузле керамическая плитка, в комнатах, кухне и прихожей - ламинат; - натяжные потолки во всей квартире; - санузел в керамической плитке, установлена вся сантехника: унитаз, акриловая ванна с экраном, раковина. - В ПОДАРОК в квартире сразу будет установлен кухонный гарнитур с встроенной техникой: духовой шкаф, вытяжка, стиральная машина В подъезде два лифта: пассажирский и грузовой; Двор без машин; - Одновременно создаётся необходимая инфраструктура: детские сады, школы, торговые галереи и спорт-объекты. Квартира отлично подходит для проживания молодой семьи или для сдачи в аренду. Продажа по переуступке от собственника, цена НИЖЕ Застройщика. Ваш переезд в СВОЮ квартиру мечты совсем близко! Звоните! Завтра Вам могут ответить: "Продано!"



93 000 ₽/м²
Продаётся 1-комнатная квартира в строящемся доме (Побочинская,60), срок сдачи: IV-кв. 2027, общей площадью 31.95 кв.м., на 2 этаже. Дизайнерская отделка. В "Лугометрии" мы объединили общение с природой и комфорт городских условий. Название проекта родилось из идеального баланса между цветущими лугами и геометрией жилого комплекса. Этот район - настоящая экологическая сокровищница нашего города. Здесь растут редкие растения, занесенные в Красную книгу.Для строительства мы выбрали Октябрьский район, Арбеково: этот район активно развивается и считается одним из самых перспективных и приоритетных для развития Пензы. Тут проходят основные магистрали города, установлено самое большое количество видеокамер в Пензе, есть более десятка торговых центров и других социальных объектов.


84 709 ₽/м²
Шикарное предложение от физического лица! Продам просторную студию 33 кв.м., 7/18 эт. в 1 строении ЖК Лугометрия. Окна на восток, удобное расположение квартиры недалеко от лифта, прекрасный молодой микрорайон со всем необходимым в шаговой доступности и САМАЯ ВЫГОДНАЯ ЦЕНА - ниже чем у застройщика!

130 000 ₽/м²
Продаётся 4-комнатная квартира в сданном доме (Кирова, 9), срок сдачи: IV-кв. 2024, общей площадью 97.6 кв.м., на 1 этаже. Квартира в кирпичном доме в центре Саранска. Действует семейная ипотека 6% Дом сдаётся в IV квартале 2024 года Жилой комплекс бизнес-класса "Самоцветы" расположен в самом центре Саранска рядом с парком им. А.С. Пушкина, вдали от шумных проспектов, где можно насладиться тишиной и прекрасным видом на городские красоты. КВАРТИРА - Потолки 2,7м. - Звукоизоляционное панорамное остекление - Большие кухни - Лоджия в каждой квартире ДОМ - 15 этажей - 4-5 квартир на этаже - 2 лифта в подъезде - Высокопрочный кирпич - Вентилируемые фасады ДВОР - детские игровые площадки - спортивные площадки - пространство для командных игр - зона для отдыха - ландшафтное озеленение ИНФРАСТРУКТУРА - школы и детские сады в шаговой доступности - магазины, аптеки, банки - театры - парк им. А.С. Пушкина СПОСОБЫ ПОКУПКИ - ипотека от ведущих банков, в том числе семейная 6% - жилищные сертификаты - материнский капитал Звоните! Мы подробнее расскажем о доме способах приобретения. Проводим ипотечные консультации.






88 000 ₽/м²
Продаётся 3-комнатная квартира в строящемся доме (Побочинская,60), срок сдачи: IV-кв. 2027, общей площадью 75.81 кв.м., на 10 этаже. Дизайнерская отделка. В "Лугометрии" мы объединили общение с природой и комфорт городских условий. Название проекта родилось из идеального баланса между цветущими лугами и геометрией жилого комплекса. Этот район - настоящая экологическая сокровищница нашего города. Здесь растут редкие растения, занесенные в Красную книгу.Для строительства мы выбрали Октябрьский район, Арбеково: этот район активно развивается и считается одним из самых перспективных и приоритетных для развития Пензы. Тут проходят основные магистрали города, установлено самое большое количество видеокамер в Пензе, есть более десятка торговых центров и других социальных объектов.



104 000 ₽/м²
Соседи на Минской новый проект от Рисан в Ближнем Арбеково. Рассрочка 5 лет без %. Здесь, в знакомом и любимом многими районе, мы создали современный 17-этажный дом комфорт-класса с подземным паркингом. От квартала Соседи на Минской легко добраться без пересадок по всему городу - здесь проходят более 20 маршрутов общественного транспорта: в центр, на Западную, Южную, КПД, автовокзал, в Богословку, Терновку, на Шуист и на Окружную. В шаговой доступности Парк Времён с прогулочной аллеей, детский парк аттракционов, набережная пруда. Немного о преимуществах проекта: - Высокая энергоэффективность до А++; - Развитая инфраструктура района: рядом более 10 школ и детских садиков, крупные торговые центры, фитнес-клубы. - Вместо автомобилей во дворе подземный паркинг на 163 машино-места. - Озеленение от Рисан. Во дворе будут представлены композиции из нескольких видов многолетних растений. - Сквозные холлы с колясочными со входом на уровне земли. - Большой выбор удобных и функциональных планировок. - Центр безопасности Рисан. - Собственная управляющая компания. Узнайте больше о проекте комфорт-класса в Ближнем Арбеково на бесплатной консультации в наших офисах продаж. Проектная декларация размещена на сайте единой информационной системы жилищного строительства наш.дом.рф.



99 000 ₽/м²
Соседи на Минской новый проект от Рисан в Ближнем Арбеково. Рассрочка 5 лет без %. Здесь, в знакомом и любимом многими районе, мы создали современный 17-этажный дом комфорт-класса с подземным паркингом. От квартала Соседи на Минской легко добраться без пересадок по всему городу - здесь проходят более 20 маршрутов общественного транспорта: в центр, на Западную, Южную, КПД, автовокзал, в Богословку, Терновку, на Шуист и на Окружную. В шаговой доступности Парк Времён с прогулочной аллеей, детский парк аттракционов, набережная пруда. Немного о преимуществах проекта: - Высокая энергоэффективность до А++; - Развитая инфраструктура района: рядом более 10 школ и детских садиков, крупные торговые центры, фитнес-клубы. - Вместо автомобилей во дворе подземный паркинг на 163 машино-места. - Озеленение от Рисан. Во дворе будут представлены композиции из нескольких видов многолетних растений. - Сквозные холлы с колясочными со входом на уровне земли. - Большой выбор удобных и функциональных планировок. - Центр безопасности Рисан. - Собственная управляющая компания. Узнайте больше о проекте комфорт-класса в Ближнем Арбеково на бесплатной консультации в наших офисах продаж. Проектная декларация размещена на сайте единой информационной системы жилищного строительства наш.дом.рф.



134 569 ₽/м²
Представьте пространство, сочетающее комфорт городской жизни и уют природы. Именно таким станет ЖК "Новая история" в 3-м микрорайоне ("Юбилейный") — один из крупнейших проектов в Саранске от надежного застройщика АО "СЗ "МИК".От центра Саранска ЖК отделяет всего 4 километра и 8 минут езды на авто. В пешей доступности находятся ТЦ "Севастополь" (10 мин), ТРЦ "Сити Парк" (12 мин) и остановка общественного транспорта (2 мин).Детский сад, расположенный в центральной части микрорайона, близость Центра образования 15 "Высота" делают ЖК "Новая история" особенно привлекательным для семей с детьми.Преимущества ЖК "Новая история":- Развитая социальная инфраструктура района: ЦО 15 "Высота", детские сады, поликлиники, магазины в шаговой доступности;- Зеленый сквер для прогулок на территории ЖК;- Концепция "двор без машин";- Функциональные и продуманные планировки для создания вашего идеального интерьера;- Современный уютный дизайн входных групп;- Спортивные площадки для всех возрастов;- Детские игровые комплексы с качелями и горками;- в площадке 2/1 закрытая дворовая территория.Почему стоит рассмотреть квартиру в ЖК "Новая история" уже сегодня?Это проект, задающий новые стандарты городской среды. Здесь есть все для семьи, активного образа жизни и уютного отдыха дома.Жилой комплекс "Новая история" — место, где начинается ваше будущее!



120 211 ₽/м²
Представьте пространство, сочетающее комфорт городской жизни и уют природы. Именно таким станет ЖК "Новая история" в 3-м микрорайоне ("Юбилейный") — один из крупнейших проектов в Саранске от надежного застройщика АО "СЗ "МИК".От центра Саранска ЖК отделяет всего 4 километра и 8 минут езды на авто. В пешей доступности находятся ТЦ "Севастополь" (10 мин), ТРЦ "Сити Парк" (12 мин) и остановка общественного транспорта (2 мин).Детский сад, расположенный в центральной части микрорайона, близость Центра образования 15 "Высота" делают ЖК "Новая история" особенно привлекательным для семей с детьми.Преимущества ЖК "Новая история":- Развитая социальная инфраструктура района: ЦО 15 "Высота", детские сады, поликлиники, магазины в шаговой доступности;- Зеленый сквер для прогулок на территории ЖК;- Концепция "двор без машин";- Функциональные и продуманные планировки для создания вашего идеального интерьера;- Современный уютный дизайн входных групп;- Спортивные площадки для всех возрастов;- Детские игровые комплексы с качелями и горками.Почему стоит рассмотреть квартиру в ЖК "Новая история" уже сегодня?Это проект, задающий новые стандарты городской среды. Здесь есть все для семьи, активного образа жизни и уютного отдыха дома.Жилой комплекс "Новая история" — место, где начинается ваше будущее!

93 264 ₽/м²
продам квартиру. я собственник. Дом сдан в марте 2026. о жк Соседи на Минской - проект для тех, кто хочет переехать в Рисан, оставаясь в Арбеково. Закрытая территория. Арбеково для многих знакомый и милый сердцу район Пензы с отличной инфраструктурой. Прямо напротив дома школа и садик, в пешей доступности 3 парка, набережная и более 10 городских образовательных учреждений, а также спортивные и танцевальные клубы. Вы сможете добираться без пересадок по всему городу. Рядом маршруты в центр, на Западную, Южную, КПД, автовокзал, в Богословку, Терновку, на Шуист и на Окружную.



129 545 ₽/м²
Продается квартира на среднем этаже в новом современном 18 -ти этажном доме комфорт-класса. Квартира общей площадью 44 кв.м. с просторной кухней - 19,16 кв.м., комнатой- 14,85 кв.м., раздельным санузлом и входной зоной- 4,2 кв.м. В настоящее время в квартире проводятся ремонтные работы. В итоге вы получаете новую квартиру с современным ремонтом - стены оклеены обоями, ламинат на полу, качественные межкомнатные двери, стены и пол санузла в кафеле, установлены смесители и сантехника. В шаговой доступности находятся остановки общественного транспорта, магазины, в т.ч. сетевые, такие как ЕвроСпар, Чижик, Магнит. Через дом расположен детский сад 88, школа 36. Квартиру с ремонтом можно приобрести по семейной ипотеке. Дом сдан, коммуникации все подключены.



130 842 ₽/м²
Представьте пространство, сочетающее комфорт городской жизни и уют природы. Именно таким станет ЖК "Новая история" в 3-м микрорайоне ("Юбилейный") — один из крупнейших проектов в Саранске от надежного застройщика АО "СЗ "МИК".От центра Саранска ЖК отделяет всего 4 километра и 8 минут езды на авто. В пешей доступности находятся ТЦ "Севастополь" (10 мин), ТРЦ "Сити Парк" (12 мин) и остановка общественного транспорта (2 мин).Детский сад, расположенный в центральной части микрорайона, близость Центра образования 15 "Высота" делают ЖК "Новая история" особенно привлекательным для семей с детьми.Преимущества ЖК "Новая история":- Развитая социальная инфраструктура района: ЦО 15 "Высота", детские сады, поликлиники, магазины в шаговой доступности;- Зеленый сквер для прогулок на территории ЖК;- Концепция "двор без машин";- Функциональные и продуманные планировки для создания вашего идеального интерьера;- Современный уютный дизайн входных групп;- Спортивные площадки для всех возрастов;- Детские игровые комплексы с качелями и горками.Почему стоит рассмотреть квартиру в ЖК "Новая история" уже сегодня?Это проект, задающий новые стандарты городской среды. Здесь есть все для семьи, активного образа жизни и уютного отдыха дома.Жилой комплекс "Новая история" — место, где начинается ваше будущее!



128 035 ₽/м²
Представьте пространство, сочетающее комфорт городской жизни и уют природы. Именно таким станет ЖК "Новая история" в 3-м микрорайоне ("Юбилейный") — один из крупнейших проектов в Саранске от надежного застройщика АО "СЗ "МИК".От центра Саранска ЖК отделяет всего 4 километра и 8 минут езды на авто. В пешей доступности находятся ТЦ "Севастополь" (10 мин), ТРЦ "Сити Парк" (12 мин) и остановка общественного транспорта (2 мин).Детский сад, расположенный в центральной части микрорайона, близость Центра образования 15 "Высота" делают ЖК "Новая история" особенно привлекательным для семей с детьми.Преимущества ЖК "Новая история":- Развитая социальная инфраструктура района: ЦО 15 "Высота", детские сады, поликлиники, магазины в шаговой доступности;- Зеленый сквер для прогулок на территории ЖК;- Концепция "двор без машин";- Функциональные и продуманные планировки для создания вашего идеального интерьера;- Современный уютный дизайн входных групп;- Спортивные площадки для всех возрастов;- Детские игровые комплексы с качелями и горками;- в площадке 2/1 закрытая дворовая территория.Почему стоит рассмотреть квартиру в ЖК "Новая история" уже сегодня?Это проект, задающий новые стандарты городской среды. Здесь есть все для семьи, активного образа жизни и уютного отдыха дома.Жилой комплекс "Новая история" — место, где начинается ваше будущее!



102 000 ₽/м²
Соседи на Минской новый проект от Рисан в Ближнем Арбеково. Рассрочка 5 лет без %. Здесь, в знакомом и любимом многими районе, мы создали современный 17-этажный дом комфорт-класса с подземным паркингом. От квартала Соседи на Минской легко добраться без пересадок по всему городу - здесь проходят более 20 маршрутов общественного транспорта: в центр, на Западную, Южную, КПД, автовокзал, в Богословку, Терновку, на Шуист и на Окружную. В шаговой доступности Парк Времён с прогулочной аллеей, детский парк аттракционов, набережная пруда. Немного о преимуществах проекта: - Высокая энергоэффективность до А++; - Развитая инфраструктура района: рядом более 10 школ и детских садиков, крупные торговые центры, фитнес-клубы. - Вместо автомобилей во дворе подземный паркинг на 163 машино-места. - Озеленение от Рисан. Во дворе будут представлены композиции из нескольких видов многолетних растений. - Сквозные холлы с колясочными со входом на уровне земли. - Большой выбор удобных и функциональных планировок. - Центр безопасности Рисан. - Собственная управляющая компания. Узнайте больше о проекте комфорт-класса в Ближнем Арбеково на бесплатной консультации в наших офисах продаж. Проектная декларация размещена на сайте единой информационной системы жилищного строительства наш.дом.рф.



80 000 ₽/м²
"Артель" Квартал ценителей. Представляем вам жилой комплекс "Артель". Это уникальное пространство, созданное для тех, кто ценит уют, комфорт и гармонию с природой в городе. "Артель" это не просто жилье, а настоящая экосистема, где каждый элемент продуман до мелочей. Здесь вы найдете просторные квартиры с высокими потолками, наполненными естественным светом, современные инженерные системы и продуманные планировки, обеспечивающие максимальное удобство для жизни. Проект ориентирован на создание условий, где у вас будет больше времени для общения с близкими и для личного пространства. Специальная инфраструктура комплекса включает зоны отдыха, детские, спортивные площадки и зеленые насаждения, позволяющие наслаждаться свежим воздухом без необходимости покидать пределы дома. Стремление к уединению и истинному наслаждению жизнью вот философия "Артель". В вашем распоряжении будут приватные дворы, закрытые от посторонних глаз, а также благоустроенная территория с прогулочными аллеями. Живите в ритме города, но будьте ближе к природе! Приглашаем вас стать частью уникального сообщества "Артель", где жизнь обретает новые краски!



107 000 ₽/м²
Продаётся 1-комнатная квартира в строящемся доме (дом 1), срок сдачи: II-кв. 2027, общей площадью 36.85 кв.м., на 12 этаже. Дизайнерская отделка. В "Лугометрии" мы объединили общение с природой и комфорт городских условий. Название проекта родилось из идеального баланса между цветущими лугами и геометрией жилого комплекса. Этот район - настоящая экологическая сокровищница нашего города. Здесь растут редкие растения, занесенные в Красную книгу.Для строительства мы выбрали Октябрьский район, Арбеково: этот район активно развивается и считается одним из самых перспективных и приоритетных для развития Пензы. Тут проходят основные магистрали города, установлено самое большое количество видеокамер в Пензе, есть более десятка торговых центров и других социальных объектов.
| 🔷 Средняя цена продажи: | 8,5 млн ₽ |
| 🔷 Средняя цена за м2: | 127 тыс. ₽/м² |
| 🔷 Минимальная стоимость: | 7,8 млн ₽ |
| 🔷 Самый дорогой объект: | 9,4 млн ₽ |