


129 617 ₽/м²
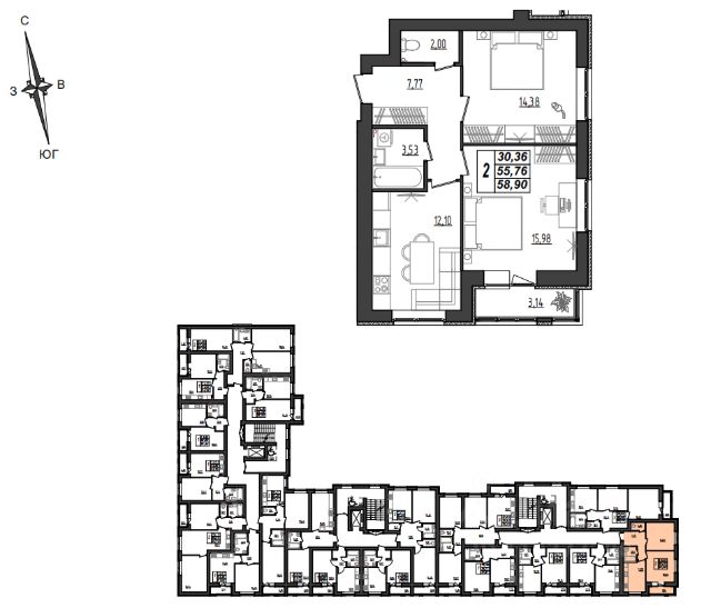
Представьте пространство, сочетающее комфорт городской жизни и уют природы. Именно таким станет ЖК "Новая история" в 3-м микрорайоне ("Юбилейный") — один из крупнейших проектов в Саранске от надежного застройщика АО "СЗ "МИК".От центра Саранска ЖК отделяет всего 4 километра и 8 минут езды на авто. В пешей доступности находятся ТЦ "Севастополь" (10 мин), ТРЦ "Сити Парк" (12 мин) и остановка общественного транспорта (2 мин).Детский сад, расположенный в центральной части микрорайона, близость Центра образования 15 "Высота" делают ЖК "Новая история" особенно привлекательным для семей с детьми.Преимущества ЖК "Новая история":- Развитая социальная инфраструктура района: ЦО 15 "Высота", детские сады, поликлиники, магазины в шаговой доступности;- Зеленый сквер для прогулок на территории ЖК;- Концепция "двор без машин";- Функциональные и продуманные планировки для создания вашего идеального интерьера;- Современный уютный дизайн входных групп;- Спортивные площадки для всех возрастов;- Детские игровые комплексы с качелями и горками;- в площадке 2/1 закрытая дворовая территория.Почему стоит рассмотреть квартиру в ЖК "Новая история" уже сегодня?Это проект, задающий новые стандарты городской среды. Здесь есть все для семьи, активного образа жизни и уютного отдыха дома.Жилой комплекс "Новая история" — место, где начинается ваше будущее!

































































































