Мы используем куки-файлы. Соглашение об использовании

Продается здание (А)

Площадь1 153 м²
Этажность2
КлассA
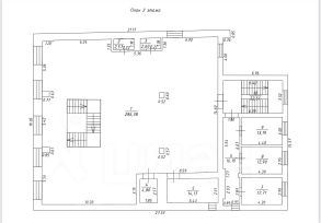
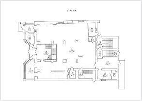
Продается, сдается в аренду 2-х этажное здание, коммерческого назначения, площадью 1153 кв.м., в т.ч., есть цокольный этаж под половиной здания. Земля, площадью 11 соток, находится в собственности. Здание располагается на первой линии жилого района г. Рузаевка с развитой дорожной картой и остановочными павильонами. К зданию имеется возможность подъезда в любое время суток, открытая парковка. В 2021 году была проведена полная замена фасада, кровли, наружных коммуникаций. В 2025 году вокруг здания выполнено благоустройство. Здание имеет 2 входа с главного фасада, центральный вход ведет на второй этаж, три дополнительных выхода и разгрузочную площадку. Отопление газовое индивидуальное, электричество , водоснабжение и водоотведение централизованное. На первом этаже расположен сетевой м-н Пятерочка в долгосрочной аренде, с отдельным входом. На втором этаже расположен большой зал площадью 286 кв.м, 4 помещения кабинетного типа общей площадью 70 кв.м с возможностью присоединения к общему залу, техническое помещение, санузлы. Цена - 63 млн. рублей, торг уместен. Стоимость аренды от 700 рублей за кв.м. Возможна продажа в ипотеку по ставке 12%. Подробности по телефону.
lock

Войдите или зарегистрируйтесь
для просмотра информации

Просматривайте условия сделки и всю информацию об объекте
Сохраняйте фильтры в поиске и не вводите заново
Доступ к избранному с любого устройства
Неограниченное добавление в избранное
Позвоните автору
Вам ответят на все вопросы
Остались вопросы по объявлению?
Позвоните владельцу объявления и уточните необходимую информацию.
  • Инфраструктура
  • Похожие рядом
Приточная вентиляция
Местное кондиционирование
Автономное отопление
Гидрантная система пожаротушения
Помощь надёжных риелторов
Риелтор партнёр Циан поможет купить или продать любую недвижимость
СобственникID 127729853
    50 000 000 ₽
    668 138 $
    571 259
    Цена за метр
    43 366 ₽
    Налог
    УСН
    СобственникID 127729853