

115 798 ₽/м²
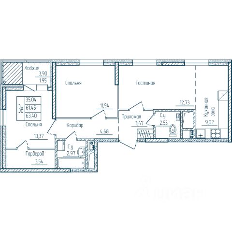
В продаже просторная квартира в теплом кирпичном доме в уютном ЖК "На Филатова" от надежного застройщика АО "СЗ "МИК".ЖК расположен на юго-западе в квартале ул. Гагарина — Фурманова — Филатова — Мичурина в 5 минутах на авто от центра Саранска.Чем хорош ЖК "На Филатова"?- Развитая инфраструктура: школы, детские сады, магазины, аптеки и остановки общественного транспорта в шаговой доступности;- Удобные, продуманные планировки;- Современные детские и спортивные площадки;- Зоны для отдыха и прогулок;- Бесшумные лифты;- Колясочные для хранения колясок и велосипедов;- Предчистовая отделка: стяжка, штукатурка, поквартирная разводка электрики.- Установлена качественная металлическая дверь;- Качественные кирпичные дома с утеплением - будет тепло даже зимой!ЖК "На Филатова" — это гармония уюта, стиля и удобства!















































































